忍者ブログ
神戸の不動産屋さん 中央区・兵庫区 東灘区・灘区 長田区・北区 芦屋市など http://www.mo-do.com/ より変更になりました。
[59]  [60]  [61]  [62]  [63]  [64]  [65]  [66]  [67
×

[PR]上記の広告は3ヶ月以上新規記事投稿のないブログに表示されています。新しい記事を書く事で広告が消えます。

新着物件をお知らせいたします。
9827396f.JPG



母子家庭の方にもよさそうなものが出ております!
・湊川公園駅徒歩1~2分で、2DKの振り分けです。
・ガスコンロ対応キッチンです。
・屋上に洗濯の干し場があり、最上階4階です。
・階段ですが、ワンフロアー独立で隣に気を使う必要がございません。
・中はきれいにリフォームされており、純和室のお部屋は落ち着いています。
・収納がたくさんあり、一度見ていただいたら、きっと気に入られると思いますので^^

いつも、お問い合わせありがとうございます。
お蔭様で、忙しいですが丁寧な対応ができるよう心がけておりますので、
よろしくお願いいたします。  モード商会 社員一同

●神戸の不動産管理・駐車場・土地・分譲、賃貸マンションのことなら
神戸駅・大倉山駅でも老舗の「モード商会」へどうぞ!
有馬街道沿いの高速神戸駅すぐスーパーのライフの北側です!

●電話078-351-5566 
(登記・相続・売却・賃貸募集・オーナー代行・リフォームなど
各種不動産全般のご相談などお気軽にどうぞ!)


●神戸市内なら各エリアで信頼ある不動産業者さんもご紹介いたします。
皆さん神戸のために日々がんばっていますので、物件・地域情報も
共有しておりますのでお気軽にご相談ください。


PR
いつもありがとうございます!
c8264a32.jpg




ご案内業者様・オーナーさま、お客様、リフォーム会社さま、電気店さま、引越し会社さま、鍵交換会社様、保険会社さま、お蔭様で満室となりました!ありがとうございます!
今後ともよろしくお願いいたします。

住居・店舗
シティハイツ神戸
クラン佐比江
クラン上沢
三陽マンション
IH兵庫
ラビューレ北野
ラビューレHATA
谷ビル
ヴァレ楠
カサ春日野道

ガレージ
フジキモータープール
菅原モータープール
アールグレーパーキング
ハナヤ第一モータープール
古湊モータープール
シティハイツガレージ

image_company.jpg


●神戸の不動産管理・駐車場・土地・分譲、賃貸マンションのことなら
神戸駅・大倉山駅でも老舗の「モード商会」へどうぞ!
有馬街道沿いの高速神戸駅すぐスーパーのライフの北側です!
●電話078-351-5566 
(登記・相続・売却・賃貸募集・オーナー代行・リフォームなど
各種不動産全般のご相談などお気軽にどうぞ!)

●神戸市内なら各エリアで信頼ある不動産業者さんもご紹介いたします。
皆さん神戸のために日々がんばっていますので、物件・地域情報も
共有しておりますのでお気軽にご相談ください。

不動産屋の種類と特徴

w323a.jpg

real_partner2.jpg
大きく分けて3タイプに分けられます。それぞれの特徴を見ていきましょう。

数多くの支店がある大手
このタイプは紹介できる物件の数が多い。しかし会社が大きいので契約(売上)に厳しく、少々強引な営業スタイルが特徴。比較的店内も明るく、社名も知っているという安心感から入りやすいのも特徴。直接大家さんとやり取りしているものと、別の不動産屋とやり取りしているもの(俗に業者物件と言う)と両方扱っています。

デメリットとしては、一度入ると帰りづらい雰囲気にされる事。取り扱っている数が多い反面、全ての情報を把握できていない。さらに大手は社員の出入りが激しく、新人が多いのも事実です。建物の状況や町の様子を尋ねてみれば、新人かどうかはなんとなく分かります。

フランチャイズで看板を借りているところ(カタカナの社名に多い)
有名な会社のFC加盟店で、店の名前の下あたりにもう1つ社名のあるもの。

このタイプは大家さんと直接やり取りしている物件はほとんどなく、カウンターで見せてくれる情報は、白黒で印刷されていて書式が統一されていない、どこかの会社が扱っている物件ばかり。ファイルを開いて、紙の下の方に○○不動産、○○商事と書いてあるものばかりパラパラと見せてきたら、このタイプです。

大家さんを直接知らない事がほとんど。そのため『 子供はダメ 』等の単純な条件の見落しが発生し、結果気にいったところでも入居審査落ちしてしまったりします。

さらに、別の会社から紹介する物件の情報をもらっているので、良い条件のものはあまり回ってきませんし情報伝達が遅いです。大家さんや周辺環境について尋ねても、聞き流されてしまいます。

古くからある地元の小さなところ
○○不動産、○○商事という名前で、1人、2人で経営している会社です。このタイプは直接大家さんとやり取りしているものと、別の会社とやり取りしているものと両方扱っていますが、数があまり多くありません。

しかし、新築等を抱えていても来客数が少ないため、なかなか決まらず掘り出し物が眠っている率が高いんです。

ただほとんどの場合賃貸と売買両方扱っており、賃貸の方にはあまり力を入れていないので、厳しい条件を出すと「 そんなのない! 」と一蹴されてしまう事もあります。また、大手と違って大家さん寄りな営業をするので、家賃交渉等はあまり期待できません

ワンポイントアドバイス
どのタイプのお店に入っても、担当してくれる営業マンの質によって紹介される部屋が違ってくるので、担当者の質を見極めましょう。中でも「大家さんはどんな人ですか?」の質問は有効な方法です。

周辺環境の状況を聞いても同様で、知らなければ「 静かですよ 」等の一言だけで終わります。本当に知っているのであれば、言葉の中から伝わってきますので参考にしてみてください。

参照
http://www.reprocafe.jp/syurui.html

PS 神戸の不動産屋さんもみなゴルフにいったり、会議に出たり、研修にでたりと仲良しでお互いに切磋琢磨励んでいますので、引っ越しされる際や、気軽に地域のお話などについても他の不動産やさんを紹介してもらえたりするので心強いですよ!

●神戸の不動産管理・駐車場・土地・分譲、賃貸マンションのことなら
神戸駅・大倉山駅でも老舗の「モード商会」へどうぞ!
有馬街道沿いの高速神戸駅すぐスーパーのライフの北側です!
●電話078-351-5566 
(登記・相続・売却・賃貸募集・オーナー代行・リフォームなど
各種不動産全般のご相談などお気軽にどうぞ!)

●神戸市内なら各エリアで信頼ある不動産業者さんもご紹介いたします。
皆さん神戸のために日々がんばっていますので、物件・地域情報も
共有しておりますのでお気軽にご相談ください。

周旋

gnj0808070432002-p4.jpg
「人の間を取りもつこと」
という意味だそうです。
この周旋のおかげで、
人間関係が円滑になり、つき合いの輪が拡がっていきます。
 

そのためには、ときどき自分を犠牲にしないといけないときがあります。
それは、時間だったり、お金だったり、
精神的な苦痛だったりすることもあります。
 

それでも周りの人のために、
犠牲になって奔走してくれる人がいます。
今までにそういう人のおかげで、
いろいろな人と仲良くなるきっかけを与えてもらい、
楽しい時間を過ごしてきました。
 

じゃあ、自分にはできるのか、
よく考えさせられてしまいます。
けれども、自分の生活ペースを乱したくなかったり、
精神的な苦痛が我慢できなかったりして
なかなかそういう人になれません。
 

もちろんお坊さんや聖者みたいに
自己犠牲ができるとは思っていませんが、
少しでもそういう人になれればと思います。

参考
http://www.nta.go.jp/shiraberu/zeiho-kaishaku/tsutatsu/kihon/hojin/15/15_01_18.htm
http://www.warp.or.jp/~taiki/fav/fav43.html

PS 昔から、仲介としての役割が強かったのですね!
勉強になりました!ありがとうございます。
gam0808071019001-p6.jpg

●神戸の不動産管理・駐車場・土地・分譲、賃貸マンションのことなら
神戸駅・大倉山駅でも老舗の「モード商会」へどうぞ!
有馬街道沿いの高速神戸駅すぐスーパーのライフの北側です!
●電話078-351-5566 
(登記・相続・売却・賃貸募集・オーナー代行・リフォームなど
各種不動産全般のご相談などお気軽にどうぞ!)

●神戸市内なら各エリアで信頼ある不動産業者さんもご紹介いたします。
皆さん神戸のために日々がんばっていますので、物件・地域情報も
共有しておりますのでお気軽にご相談ください。

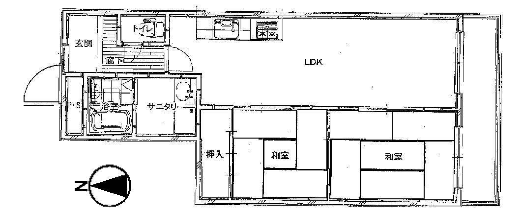
イスズハイツベル長田

d5ec78f6.jpegmap_b.gifP1050954.jpgP1050948.jpgcbb634e6.gif
2LDK 55㎡


神戸市長田区長田天神町4丁目7-2
1984年12月 地上8階/地下1階建 7階部分
沿線/最寄駅: 神鉄 有馬線/長田駅 徒歩5分  神鉄 有馬線/丸山駅 徒歩12分


●神戸の不動産管理・駐車場・土地・分譲、賃貸マンションのことなら
神戸駅・大倉山駅でも老舗の「モード商会」へどうぞ!
有馬街道沿いの高速神戸駅すぐスーパーのライフの北側です!
●電話078-351-5566 
(登記・相続・売却・賃貸募集・オーナー代行・リフォームなど
各種不動産全般のご相談などお気軽にどうぞ!)

●神戸市内なら各エリアで信頼ある不動産業者さんもご紹介いたします。
皆さん神戸のために日々がんばっていますので、物件・地域情報も
共有しておりますのでお気軽にご相談ください。


お花見が近所でできて、
神戸ってほんとにいいとこですね!stamp_pattern.jpg




 

お花見ガイド

 

生田川公園の桜 春らんまん さくらまつり

hana.JPG

ステージイベントや模擬店など、楽しい催しがもりだくさんです。桜あふれる生田川公園に遊びに行きませんか!

  • 日時 4月5日(土)10:00~15:00(荒天の場合は4月6日(日))
  • 場所 中央区生田川公園(布引橋~神若橋)※地下鉄新神戸駅から南東へ徒歩5分
  • 内容 地元学生による合唱や吹奏楽演奏/民話の里「ふきあい」の紙芝居/布引音頭/地域のみなさんによる模擬店もたくさんあります!
 

第15回なだ桜まつり~人と地球にやさしい灘のまち

hana3.JPG

今年は“環境”がテーマ。会場内のごみの分別に取り組んだり、「マイ箸」を推進したりするなど、地球にやさしく、楽しい祭りをめざします。

  • 日時 4月5日(土)10:00~15:00(小雨決行、荒天中止)
  • 場所 灘区 都賀川公園(灘区民ホール東側・南側)
  • 模擬店、ゲーム、健康教室、リサイクルコーナー カラオケ大会、鬼塚太鼓、灘の酒造り唄、民踊の集い、消防音楽隊など※ステージプログラムと催しの内容は変更する場合があります。
桜まつりには「マイ箸」で参加しましょう。模擬店で食事をする場合は、家から持ってきた箸を使いましょう。また、会場ではごみの分別収集も徹底します。ご協力をお願いします。

王子動物園の桜

hana1.JPG

  • 日時 4月上旬~中旬
  • 場所 神戸市灘区王子町 阪急電車王子公園駅下車すぐ。 
  • 4月上旬~中旬、桜の木は約700本、小学生以下無料 開花状況はTEL:078-371-8711(テープ)で案内しています。入場料金は小学生以下無料です。
 

神戸の不動産管理・駐車場・土地・分譲、賃貸マンションのことなら
神戸駅・大倉山駅でも老舗の「モード商会」へどうぞ!有馬街道沿いでライフの北側にございます!電話078-351-5566 (登記・相続・売却・賃貸募集・オーナー代行・リフォームなど各種不動産全般のご相談などお気軽にどうぞ!)


1a48f22d.JPG 不動産用語集(http://ics.tokyo.zennichi.or.jp/members/guide/yougo.asp)

にてわかりやすい説明がのっていました!
ぜひご活用くださいませ。 もし、不明な点などありましたらお気軽にご相談くださいませ。 stamp_pattern.jpg







一例のご紹介

あ ページトップへ
RC造(鉄筋コンクリート造) 青田売り 青地 赤紙
赤道 頭金 アパッチバッタ アルコープ
アレルゲン あんこ業者 e内容証明 イールドギャップ
一時金 位置指定道路 一団の土地 1番抵当権
一般媒介 一般媒介契約 移転登記 イニシャルコスト
囲繞地(いにょうち) 委任状 犬走り(いぬばしり) 違反建築物
違約金 印鑑証明書 印紙税 インテリア
ウォークインクローゼット 請負契約 内金 売建住宅
売渡承諾書 上物(うわもの) HRC(エイチアールシー) ALC
エクィティ型証券 エクステリア S(鉄骨造) SRC(エスアールシー)
SRC造 エスクロウ 越境 LDK
エンドさん エントランス 追い炊き機能 大壁(おおかべ)
オートロック オーナーチェンジ オープン外構 オープンスペース
オープンハウス オープンリビング 汚水 おとり広告
親子リレー返済 温水洗浄便座    

モード商会 社員一同


神戸の不動産管理・駐車場・土地・分譲、賃貸マンションのことなら
神戸駅・大倉山駅でも老舗の「モード商会」へどうぞ!有馬街道沿いでライフの北側にございます!電話078-351-5566 (登記・相続・売却・賃貸募集・オーナー代行・リフォームなど各種不動産全般のご相談などお気軽にどうぞ!)

みなさま、いつもありがとうございます!
お蔭様で有馬街道沿い・大倉山駅近辺・神戸駅近辺が明るく、人通りも増えてきました!

大きな地図で見る


●インドカレー
・にきるさん 20090330165928487_0003.jpghttp://blog.livedoor.jp/nikhil_curry/







●ネパールカフェ
・びすたーれぃさん20090330165928487_0002.jpg http://bistarei.ko-co.jp/







●広島焼き
・睦月さん20090330165928487_0008.jpg







●フランスレストラン
・アオイさん 20090330165928487_0007.jpghttp://www.walkerplus.com/kobe/gourmet/DETAIL/V-KOBEX-4RTAZ651/








いつも地域のためにありがとうございます!
今後ともよろしくお願いいたします。
モード商会 社員一同

神戸の不動産管理・駐車場・土地・分譲、賃貸マンションのことなら
神戸駅・大倉山駅でも老舗の「モード商会」へどうぞ!有馬街道沿いでライフの北側にございます!電話078-351-5566 (登記・相続・売却・賃貸募集・オーナー代行・リフォームなど各種不動産全般のご相談などお気軽にどうぞ!)

大家検定
http://www.ooyakentei.com/kentei/first.html

おもしろ備品
http://unseki.co.jp/various/archives/2008/03/

ZENさんの物件
http://www.g-zen.jp/

ノベルさんの物件
http://www.novelasset.co.jp/ja/business/renovation.php

非常にきれいなお部屋のページ
http://www.bluestudio.jp/#

リノベーション アイディア
http://iswork.co.jp/
http://www.kiko-jh.co.jp/index.html
http://reno-reno.info/index.php

 
   


神戸の不動産管理・駐車場・土地・分譲、賃貸マンションのことなら
神戸駅・大倉山駅でも老舗の「モード商会」へどうぞ!有馬街道沿いでライフの北側にございます!電話078-351-5566 (登記・相続・売却・賃貸募集・オーナー代行・リフォームなど各種不動産全般のご相談などお気軽にどうぞ!)
  
        3224fd8b.jpg   6d87f30a.jpeg  025f9fd3.jpeg






 6e16832d.jpeg65f976a4.jpeg25b9236e.jpeg 





e8138986.jpeg83006634.jpegcd4cdac6.jpeg





86c995cf.jpeg362c9d50.jpeg4931b695.jpeg






77d4ae0d.jpeg42f2fd6f.jpg
9d27f807.jpeg










神戸の不動産管理・駐車場・土地・分譲、賃貸マンションのことなら
神戸駅・大倉山駅でも老舗の「モード商会」へどうぞ!有馬街道沿いでライフの北側にございます!電話078-351-5566 (登記・相続・売却・賃貸募集・オーナー代行・リフォームなど各種不動産全般のご相談などお気軽にどうぞ!)

<< 前のページ 次のページ >>
ブログ内検索
カレンダー
12 2026/01 02
S M T W T F S
1 2 3
4 5 6 7 8 9 10
11 12 13 14 15 16 17
18 19 20 21 22 23 24
25 26 27 28 29 30 31
会社案内
HN:
モード商会 三葉
年齢:
86
性別:
男性
誕生日:
1940/01/01
職業:
不動産の管理・売買・賃貸・仲介業
趣味:
食べ歩き・カフェ
自己紹介:
 




大きな地図で見る

地域に喜ばれるお店でいられたら嬉しいです☆

戦後、先代のモード洋裁店から始まりました。

ファッションの街神戸では新しい流行の「モード」という響きがよく使われていたそうです。

神戸の不動産管理・駐車場・土地・分譲、賃貸マンションのことなら神戸駅の「モード商会」へ!有馬街道沿いの伝統の老舗にご相談ください





































忍者ブログ [PR]