神戸の不動産屋さん
中央区・兵庫区
東灘区・灘区
長田区・北区
芦屋市など
http://www.mo-do.com/ より変更になりました。
×
[PR]上記の広告は3ヶ月以上新規記事投稿のないブログに表示されています。新しい記事を書く事で広告が消えます。
4階で階段ですが、元気な方なら十分のぼれます!
5階が屋上で洗濯の干し場がございます。
全室角部屋のワンフロアー1室の完全独立部屋なのです!
室内は角部屋の明るさで北・西・南の光が入ります。
5階が屋上で洗濯の干し場がございます。
全室角部屋のワンフロアー1室の完全独立部屋なのです!
室内は角部屋の明るさで北・西・南の光が入ります。
PR
オススメです!
|
ワコーレザ・KOBEハウス 16階 |
|---|
|
基本情報 |
物件番号:1towa16 |
||
|---|---|---|---|
|
所在地 |
兵庫県神戸市 兵庫区大開通8丁目 |
||
|
交通 |
神戸高速東西線「大開」 徒歩1分 |
||
|
賃料 |
16万円 |
管理費 |
1万1,860円 |
|
敷金・礼金 |
16万円・48万円 |
敷引または解約引 |
- |
|
保証金・権利金 |
- |
||
|
物件種目 |
マンション |
||
|
間取り |
3SLDK |
||
|
間取り内訳 |
和6.1洋8.1/6LDK19.6S3.8 |
||
|
専有面積 |
90.6㎡ |
築年月 |
2008年1月 |
|
備考1 |
ワコーレKOBEハウス最上階5末ペット相 |
||
|---|---|---|---|
|
備考2 |
2008年1月完成 内装はオーナーのオリジナルプランへと変更 キッチン部分にオプション追加してます |
||
|
特記 |
分譲タイプ, 振分, 事務所使用可, 二世帯向き, ペット相談, 楽器相談, 二人入居可, 日当たり良好, 高齢者相談 |
||
| 神戸駅徒歩6分で、3LDKのファミリータイプが募集中です! ・今なら最上階11階がございます。 ・駐車場が併設 ・全室角部屋の明るいお部屋 ・人通り、車どおりのあるエリアで安心 ロイヤルヴィレッジ |
|
||
![]() |
![]() |
|||||||||||
|
||||||||||||
PS/ 特優賃物件ですので、家賃補助が出て助かります。
私も一度、神戸の特優賃物件にはおせわになりました。
廊下が掃除されてたり、管理がきちっとされているので新婚さん、子育て世帯にはオススメです!
(実は、まだ資金面でオススメの理由がございますのでお気軽にご相談くださいませ^^)
●神戸の不動産管理・駐車場・土地・分譲、賃貸マンションのことなら
神戸駅・大倉山駅でも老舗の「モード商会」へどうぞ!
有馬街道沿いの高速神戸駅すぐスーパーのライフの北側です!
●電話078-351-5566
(登記・相続・売却・賃貸募集・オーナー代行・リフォームなど
各種不動産全般のご相談などお気軽にどうぞ!)
●神戸市内なら各エリアで信頼ある不動産業者さんもご紹介いたします。
皆さん神戸のために日々がんばっていますので、物件・地域情報も
共有しておりますのでお気軽にご相談ください。
新婚さんが入ってらっしゃった物件が募集開始となりました!
・シングルにも人気の1LDKタイプ(角部屋)・4階の最上階からの眺望と広いバルコニーデッキが魅力(友人と星空をみながらバーベキューなどいかがですか?)
・神戸大学徒歩2分の好立地なら、深夜遅くの残業からもすぐにお休みになれますね
・1階は駐車場併設で買い物やレジャー、お仕事にも便利ですね(シャッターつきで防犯上人気となっています)
見学・ご相談はどうぞ、お気軽に!
●神戸の不動産管理・駐車場・土地・分譲、賃貸マンションのことなら
神戸駅・大倉山駅でも老舗の「モード商会」へどうぞ!
有馬街道沿いの高速神戸駅すぐスーパーのライフの北側です!
●電話078-351-5566
(登記・相続・売却・賃貸募集・オーナー代行・リフォームなど
各種不動産全般のご相談などお気軽にどうぞ!)
●神戸市内なら各エリアで信頼ある不動産業者さんもご紹介いたします。
皆さん神戸のために日々がんばっていますので、物件・地域情報も
共有しておりますのでお気軽にご相談ください。
新着物件をお知らせいたします。

母子家庭の方にもよさそうなものが出ております!
・湊川公園駅徒歩1~2分で、2DKの振り分けです。
・ガスコンロ対応キッチンです。
・屋上に洗濯の干し場があり、最上階4階です。
・階段ですが、ワンフロアー独立で隣に気を使う必要がございません。
・中はきれいにリフォームされており、純和室のお部屋は落ち着いています。
・収納がたくさんあり、一度見ていただいたら、きっと気に入られると思いますので^^
いつも、お問い合わせありがとうございます。
お蔭様で、忙しいですが丁寧な対応ができるよう心がけておりますので、
よろしくお願いいたします。 モード商会 社員一同
●神戸の不動産管理・駐車場・土地・分譲、賃貸マンションのことなら
神戸駅・大倉山駅でも老舗の「モード商会」へどうぞ!
有馬街道沿いの高速神戸駅すぐスーパーのライフの北側です!
●電話078-351-5566
(登記・相続・売却・賃貸募集・オーナー代行・リフォームなど
各種不動産全般のご相談などお気軽にどうぞ!)
●神戸市内なら各エリアで信頼ある不動産業者さんもご紹介いたします。
皆さん神戸のために日々がんばっていますので、物件・地域情報も
共有しておりますのでお気軽にご相談ください。
母子家庭の方にもよさそうなものが出ております!
・湊川公園駅徒歩1~2分で、2DKの振り分けです。
・ガスコンロ対応キッチンです。
・屋上に洗濯の干し場があり、最上階4階です。
・階段ですが、ワンフロアー独立で隣に気を使う必要がございません。
・中はきれいにリフォームされており、純和室のお部屋は落ち着いています。
・収納がたくさんあり、一度見ていただいたら、きっと気に入られると思いますので^^
いつも、お問い合わせありがとうございます。
お蔭様で、忙しいですが丁寧な対応ができるよう心がけておりますので、
よろしくお願いいたします。 モード商会 社員一同
●神戸の不動産管理・駐車場・土地・分譲、賃貸マンションのことなら
神戸駅・大倉山駅でも老舗の「モード商会」へどうぞ!
有馬街道沿いの高速神戸駅すぐスーパーのライフの北側です!
●電話078-351-5566
(登記・相続・売却・賃貸募集・オーナー代行・リフォームなど
各種不動産全般のご相談などお気軽にどうぞ!)
●神戸市内なら各エリアで信頼ある不動産業者さんもご紹介いたします。
皆さん神戸のために日々がんばっていますので、物件・地域情報も
共有しておりますのでお気軽にご相談ください。
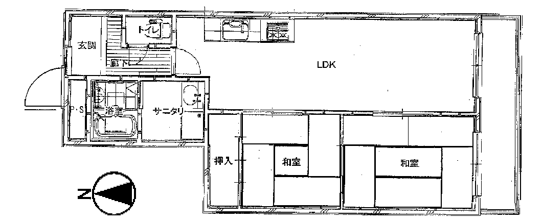
イスズハイツベル長田





2LDK 55㎡
神戸市長田区長田天神町4丁目7-2
1984年12月 地上8階/地下1階建 7階部分
沿線/最寄駅: 神鉄 有馬線/長田駅 徒歩5分 神鉄 有馬線/丸山駅 徒歩12分
●神戸の不動産管理・駐車場・土地・分譲、賃貸マンションのことなら
神戸駅・大倉山駅でも老舗の「モード商会」へどうぞ!
有馬街道沿いの高速神戸駅すぐスーパーのライフの北側です!
●電話078-351-5566
(登記・相続・売却・賃貸募集・オーナー代行・リフォームなど
各種不動産全般のご相談などお気軽にどうぞ!)
●神戸市内なら各エリアで信頼ある不動産業者さんもご紹介いたします。
皆さん神戸のために日々がんばっていますので、物件・地域情報も
共有しておりますのでお気軽にご相談ください。
2LDK 55㎡
神戸市長田区長田天神町4丁目7-2
1984年12月 地上8階/地下1階建 7階部分
沿線/最寄駅: 神鉄 有馬線/長田駅 徒歩5分 神鉄 有馬線/丸山駅 徒歩12分
●神戸の不動産管理・駐車場・土地・分譲、賃貸マンションのことなら
神戸駅・大倉山駅でも老舗の「モード商会」へどうぞ!
有馬街道沿いの高速神戸駅すぐスーパーのライフの北側です!
●電話078-351-5566
(登記・相続・売却・賃貸募集・オーナー代行・リフォームなど
各種不動産全般のご相談などお気軽にどうぞ!)
●神戸市内なら各エリアで信頼ある不動産業者さんもご紹介いたします。
皆さん神戸のために日々がんばっていますので、物件・地域情報も
共有しておりますのでお気軽にご相談ください。
ブログ内検索
何をお探しです?
カレンダー
| 11 | 2025/12 | 01 |
| S | M | T | W | T | F | S |
|---|---|---|---|---|---|---|
| 1 | 2 | 3 | 4 | 5 | 6 | |
| 7 | 8 | 9 | 10 | 11 | 12 | 13 |
| 14 | 15 | 16 | 17 | 18 | 19 | 20 |
| 21 | 22 | 23 | 24 | 25 | 26 | 27 |
| 28 | 29 | 30 | 31 |
最新ニュース
(08/24)
(04/26)
(04/26)
(03/01)
(10/16)
(10/15)
(10/14)
(10/13)
(10/13)
(10/03)
会社案内
HN:
モード商会 三葉
年齢:
85
性別:
男性
誕生日:
1940/01/01
職業:
不動産の管理・売買・賃貸・仲介業
趣味:
食べ歩き・カフェ
自己紹介:
大きな地図で見る
地域に喜ばれるお店でいられたら嬉しいです☆
戦後、先代のモード洋裁店から始まりました。
ファッションの街神戸では新しい流行の「モード」という響きがよく使われていたそうです。
神戸の不動産管理・駐車場・土地・分譲、賃貸マンションのことなら神戸駅の「モード商会」へ!有馬街道沿いの伝統の老舗にご相談ください
大きな地図で見る
地域に喜ばれるお店でいられたら嬉しいです☆
戦後、先代のモード洋裁店から始まりました。
ファッションの街神戸では新しい流行の「モード」という響きがよく使われていたそうです。
神戸の不動産管理・駐車場・土地・分譲、賃貸マンションのことなら神戸駅の「モード商会」へ!有馬街道沿いの伝統の老舗にご相談ください







